Desch for men
Realisierung: 2001
Umbau und Sanierung
Die Desch Kleiderwerke GmbH ist die älteste deutsche Kleiderfabrik.
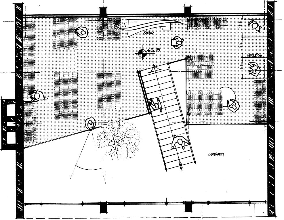
Das in den 50er Jahren erbaute Kesselhaus wurde in seiner ursprünglichen Funktion nicht mehr genutzt. Somit bot das zeitgenössische Gebäude mit mehr als 6 m Raumhöhe ideale Voraussetzungen für einen factory outlet store.
Die eingebaute Galerie wirkt leicht und filigran und unterstützt die klassischen Proportionen der Nachkriegsarchitektur.
